Villa, Via Sacra San Michele, Giaveno
  • € 400.000
  • 220 mq
  • 7 locali
  • 1 bagni
  • su piu livelli

DESCRIZIONE IMMOBILE

immobile inserito nella zona residenziale della frazione Sala di Giaveno Provincia di Torino a 524 slm, servito da mezzi pubblici , servizi di zona , sulla strada che collega il Capoluogo alla
Sacra di San Michele , simbolo del Piemonte, ad 1, 5 km dalla Piazza principale. Libero da 4 lati con esposizione facciata principale a sud est.
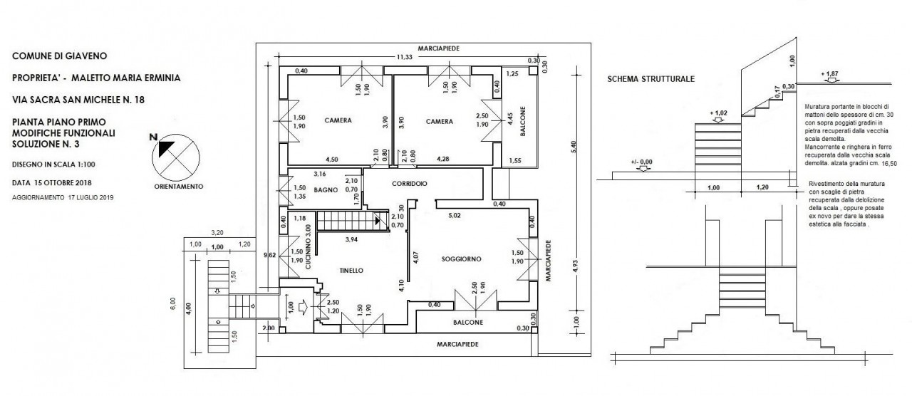
composto al piano terra , box doppio e cantina, al piano primo 4 locali , corridoio , bagno, tetto in Legno a vista dal solaio.
Il prezzo è stato ricavato dalla capitalizzazione della rendita di locazione e catastale , media di zona .
TI INTERESSA QUESTO IMMOBILE?
Scegli un'agenzia immobiliare e fissa subito
un appuntamento per una visione gratuita
Senza registrazione

CARATTERISTICHE IMMOBILE

Stato al rogito Libero
Contratto Vendita
Tipologia immobile Villa
Superficie 220Mq
Locali 7
Bagni 1
Riscaldamento Autonomo
Balconi 3
Box Doppio
Giardino Privato
Numero piano Su piu livelli
Classe energetica F
EPgl,nren (KWh/m2 anno) 125

VALUTAZIONE DEGLI UTENTI

Al momento non sono presenti valutazioni per questo immobile

Hai già visionato questo immobile?