Appartamento, Piazza Marinoni, Tirano
  • € 185.000
  • 120 mq
  • 5 locali
  • 2 bagni
  • 3 piano

DESCRIZIONE IMMOBILE

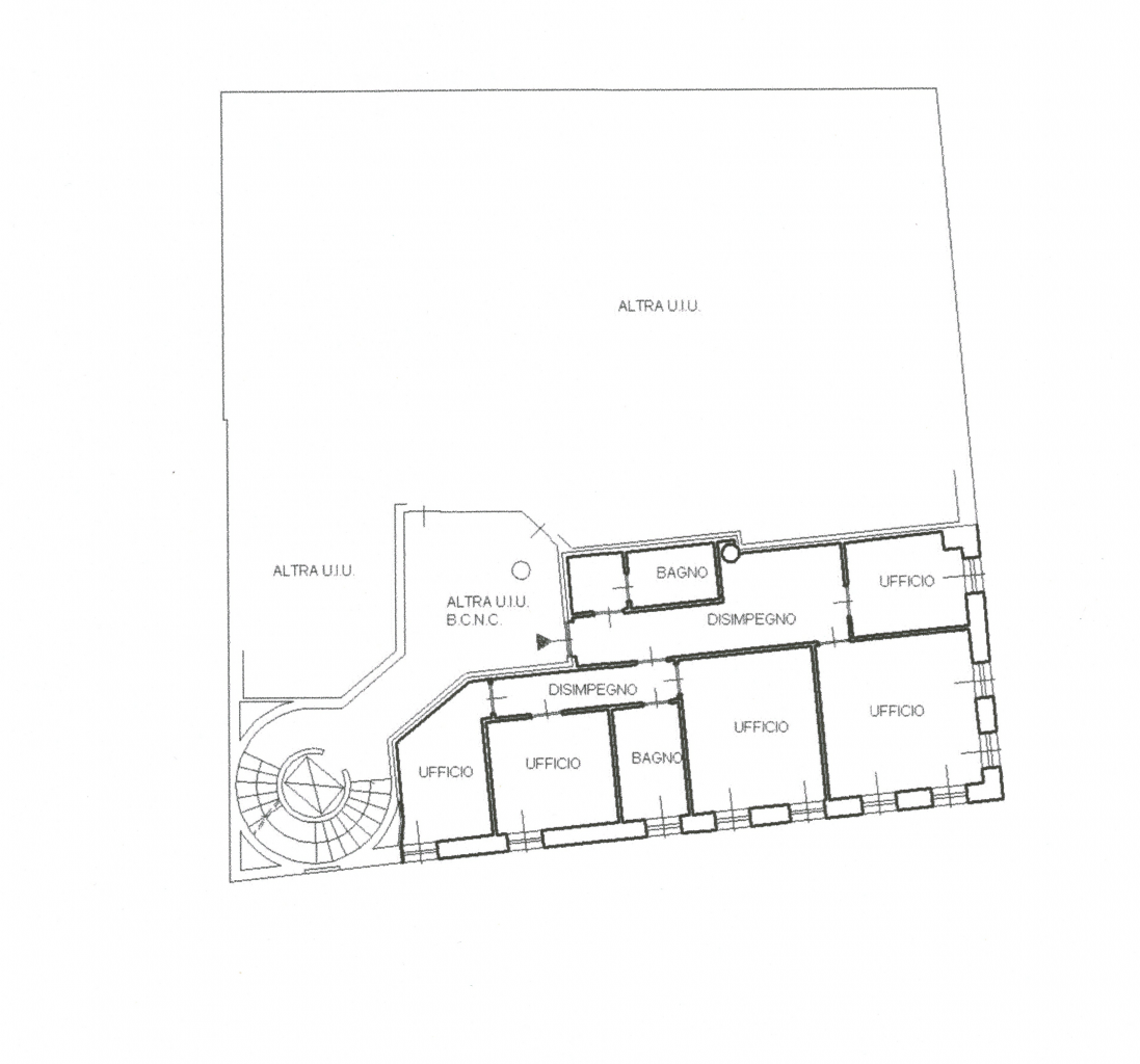
TIRANO, sulla centralissima Piazza Marinoni proponiamo in vendita ampio ufficio libero subito di circa 120 mq. composto da 5 ampi locali, disimpegni e doppi servizi.
TI INTERESSA QUESTO IMMOBILE?
Scegli un'agenzia immobiliare e fissa subito
un appuntamento per una visione gratuita
Senza registrazione

CARATTERISTICHE IMMOBILE

Stato al rogito Libero
Contratto Vendita
Tipologia immobile Appartamento
Superficie 120Mq
Locali 5
Bagni 2
Riscaldamento Centralizzato
Numero piano 3
Classe energetica In fase di richiesta
Ascensore SI

VALUTAZIONE DEGLI UTENTI

Al momento non sono presenti valutazioni per questo immobile

Hai già visionato questo immobile?