Bilocale, Via G. di Vittorio, San Donato Milanese
  • € 190.000
  • 65 mq
  • 2 locali
  • 1 bagni
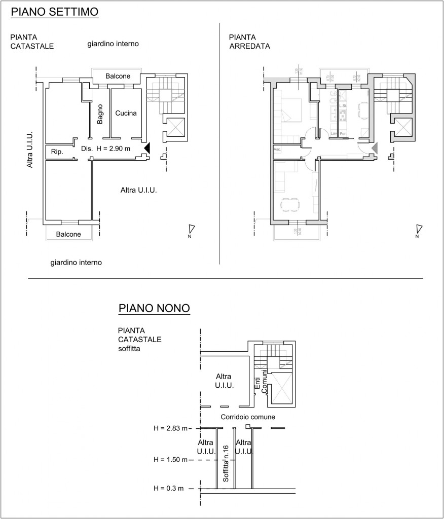
  • 7 piano

DESCRIZIONE IMMOBILE

Ampio bilocale interamente ristrutturato a fine 2014, con progetto d’interni curato da un architetto. L’appartamento si colloca in via di Vittorio 50, al 7° di 8 piani, in un contesto tranquillo e ben servito.
L’immobile fa parte di un complesso costituito da due palazzi, in posizione comoda per la vicinanza a strutture e servizi quali scuole, supermercati, fermata autobus e farmacia. Dispone inoltre di un ampio parcheggio con posti non assegnati ad uso esclusivo dei condomini.
COMPOSIZIONE: L’appartamento – composto da ingresso, cucina abitabile con balcone, bagno e camera da letto con finestre, ampia zona living con balcone, ripostiglio e cantina di pertinenza - risulta molto luminoso, con doppia esposizione sud/est-nord/ovest. L’appartamento dispone di zanzariere in tutti gli ambienti, infissi in PVC a doppia camera, sistema di climatizzazione a pompa di calore Daikin, tapparelle elettriche in acciaio coibentato, porta blindata, bagno con doppio lavabo, sistema di riscaldamento centralizzato con termo valvole.
TI INTERESSA QUESTO IMMOBILE?
Scegli un'agenzia immobiliare e fissa subito
un appuntamento per una visione gratuita
Senza registrazione

CARATTERISTICHE IMMOBILE

Stato al rogito Libero
Contratto Vendita
Tipologia immobile Bilocale
Superficie 65Mq
Locali 2
Bagni 1
Riscaldamento Centralizzato
Condizione immobile Ristrutturato
Balconi 2
Numero piano 7
Classe energetica F
Ascensore SI
Mansarda SI

VALUTAZIONE DEGLI UTENTI

Al momento non sono presenti valutazioni per questo immobile

Hai già visionato questo immobile?