| Stato al rogito | Libero |
| Contratto | Vendita |
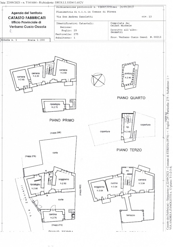
| Tipologia immobile | Casa indipendente |
| Superficie | 226Mq |
| Locali | 11 |
| Bagni | 2 |
| Riscaldamento | Autonomo |
| Condizione immobile | Abitabile |
| Balconi | 5 |
| Box | Singolo |
| Giardino | Privato |
| Numero piano | 5 |
| Classe energetica | G |
| EPgl,nren (KWh/m2 anno) | 328 |
Al momento non sono presenti valutazioni per questo immobile
Hai già visionato questo immobile?