| Stato al rogito | Libero |
| Contratto | Vendita |
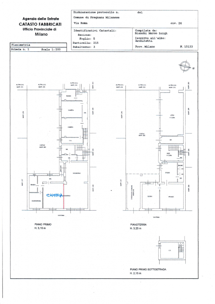
| Tipologia immobile | Casa indipendente |
| Superficie | 370Mq |
| Locali | 15 |
| Bagni | 3 |
| Riscaldamento | Autonomo |
| Condizione immobile | Da ristrutturare |
| Balconi | 1 |
| Giardino | Privato |
| Numero piano | Su piu livelli |
Al momento non sono presenti valutazioni per questo immobile
Hai già visionato questo immobile?